Polyfunkčná budova Konventná 6

ID: 1702

Základné informácie

Označenie priestoru Kancelárske a obchodné priestory
Účel Klasické kancelárie
Adresa Konventná 6, Bratislava 81103
Plocha k prenájmu od 46 do 260 m2
Požadovaný nájom 14,50 € /m2/mes.
Preddavky na prevádzkové náklady: 3,50 € /m2/mes.

Poznámka:

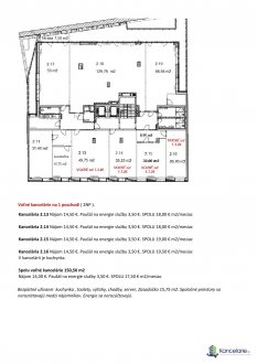
Aktuálna ponuka kancelárií: 2.NP: k.č. 2.13 / 49,75 m² 2.NP: k.č. 2.14 / 35,25 m² 2.NP: k.č. 2.15 / 30 m² 2.NP: k.č. 2.16 / 26,70 m² 4.NP: k.č. 4.13 / 46,15 m² Možnosť prenajať si terasu: 39,95 m² 4.NP: k.č. 4.16 / 63,40 m² Vybavenie: klimatizácia, kuchynky, 2 x výťah. Možnosť vybaviť kanceláriu nábytkom.

Štandard

Otvárateľné okná
Zdvojená podlaha
Vysoká flexibilita priestoru
Chladenie / klimatizácia
Kamerový systém
Podlahová krytina Koberec
Výťah
Štruktúrovaná kabeláž
Flexibilita
Vysoká

Služby v budove

Spoločné zasadacie miestnosti
Stravovanie v budove
Parkovanie

Služby v budove a blízkom okolí:

Výborná infraštruktúra v okolí - banky,pošty, notári, lekárne, obchodné centrá, reštaurácie...

Informácie o budove

Kolaudácia / Rekonštrukcia 2020
Celková plocha kancelárií v budove: 1125 m2
Celková plocha obchodných priestorov: 235 m2
Počet poschodí: 7
Existujúci najomcovia: Právnici, poradenské spoločnosti, reklamná agentúra, personálna agentúra ....
Energetický cetrifikát: A

Kontaktovať nehnuteľnosť

Konventná a.s. Robert Valnoha Manažér prenájmu
Pri vyplnení a odoslaní tohto formulára dochádza k spracovaniu Vami zadaných údajov prevádzkovateľom týchto webových stránok. Bližšie informácie o spracovaní a ochrane Vašich osobných údajov sú dostupné v nasledovných podmienkach ochrany osobných údajov.

Top ponuky