Meštiansky dom Laurinská 18

ID: 1609

Základné informácie

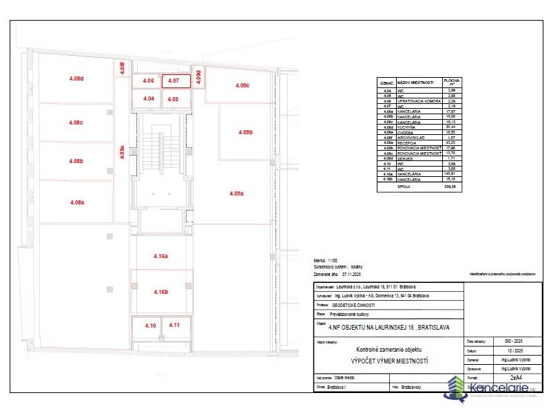
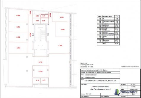
Označenie priestoru Kancelárske priestory na 4.poschodí
Účel Klasické kancelárie
Adresa Laurinská 18, Bratislava 81101
Plocha k prenájmu od 0 do 338 m2
Požadovaný nájom od 12,50 € /m2/mes.
Preddavky na prevádzkové náklady: 5,30 € /m2/mes.

Poznámka:

Ponúkame na prenájom kancelárie na 4.poschodí s výmerou 338m2. Prenajímajú sa ako celok, vieme ich rozdeliť na dve časti. Priestory sú orientované do dvora a do ulice. Uvedené kancelárie sa prenajímajú aj so zariadením. Možnosť prenájmu 2 parkovacích miest na prízemí v garáži, 220€/mes./miesto plus DPH. Elektrina sa fakturuje zvlášť, podľa odpisu elektrometra.

Štandard

Otvárateľné okná
Vysoká flexibilita priestoru
Chladenie / klimatizácia
Kamerový systém
Podlahová krytina
Výťah
Štruktúrovaná kabeláž
Flexibilita
Vysoká

Služby v budove

Recepcia
Parkovanie
Autobus
Trolejbus
Električka

Služby v budove a blízkom okolí:

V blízkosti plná občianska vybavenosť.

Informácie o budove

Kolaudácia / Rekonštrukcia 2020
Celková plocha kancelárií v budove: 2000 m2
Celková plocha obchodných priestorov: 200 m2
Počet poschodí: 6
Energetický cetrifikát: A
dokument1.pdf Stiahnúť

Kontaktovať nehnuteľnosť

Laurinská s.r.o. Hafnerová Projektový manažér
Pri vyplnení a odoslaní tohto formulára dochádza k spracovaniu Vami zadaných údajov prevádzkovateľom týchto webových stránok. Bližšie informácie o spracovaní a ochrane Vašich osobných údajov sú dostupné v nasledovných podmienkach ochrany osobných údajov.

Top ponuky