| Prenájom | Dostupné ihneď |
|---|---|
| Označenie priestoru | Kancelárske priestory |
| Účel | Klasické kancelárie |
| Adresa | Partizánska cesta 3, Banská Bystrica 97601 |
| Plocha k prenájmu | od 12 do 3617 m2 |
| Požadovaný nájom | od 14,80 € /m2/mes. |
| Preddavky na prevádzkové náklady: | 5,00 € /m2/mes. |
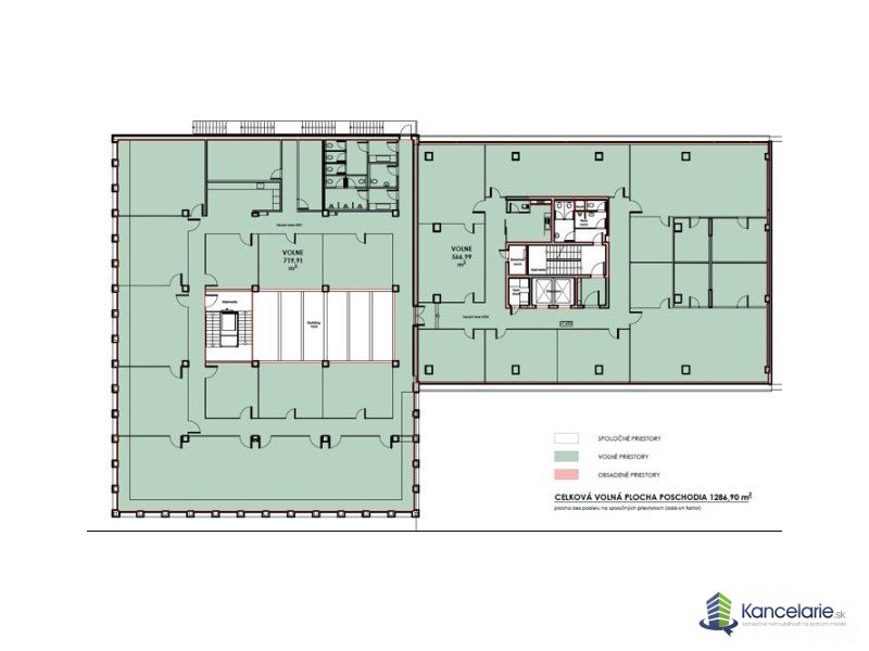
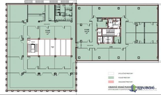
Podlažia s prenajímateľnou plochou od cca 70-100 m² do až-celé poschodie (cca 400m² alebo 566m²). Členenie je možné prispôsobiť špecifickým potrebám každého nájomníka. Vaše budúce kancelárie sú v stave holopriestor a budú vybudované do cca 2-4 mesiacov od podpisu zmluvy. Link na virtuálnu obhliadku: https://tour.giraffe360.com/2d8849b7a09f450d86ea808e680e4bf5/
Kaviareň Klientske centrum dentálna klinika gastro prevádzka
| Názov budovy | INTERPOLIS Office Center Banská Bystrica |
|---|---|
| Kolaudácia / Rekonštrukcia | 2021 |
| Celková plocha kancelárií v budove: | 18200 m2 |
| Celková plocha obchodných priestorov: | 950 m2 |
| Počet poschodí: | 12 |
| Energetický cetrifikát: | A |
| Skladové priestory: | príručné sklady v parkovacom dome |
mes.
mes.
mes.
Pripravíme Vám prehľad voľných priestorov na trhu do 24h.
Služby pre nájomcovSťahovanie vašej spoločnosti bude hračkou.
